扫描到手机
扫描到手机 新闻随时看
扫一扫,用手机看文本
更加方便分享给朋友

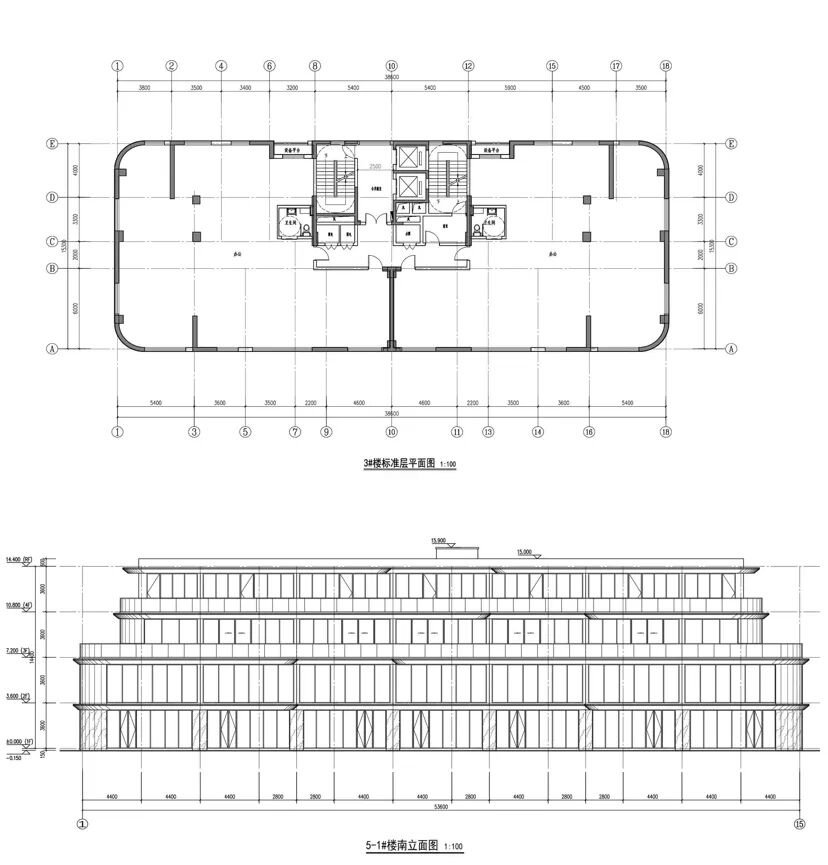
2023年12月18日,聊城望湖欣城置业有限公司向我局申请办理望湖欣城浙商双创中心建设工程规划许可证,该项目地址位于姜庄路以南、陈屯路以东,用地性质为商务金融商业用地。
根据《中华人民共和国城乡规划法》、《中华人民共和国行政许可法》等法律法规的规定我局受理后,经审查,拟许可其申请,现依法进行许可前公告。公告地点:市审批局公告栏、市审批局网站、项目现场。公示期不少于7日,自2023年12月26日至2024年1月2日。
申请人、利害关系人可在上述公示期内,持营业执照、身份证、不动产权证书或房屋买卖合同等有效证件、资料,对我局拟许可事项提出陈述、申辩意见和主动申请听证。
联系科室:工程建设审批一科
联系地址:昌润路153号
联系电话:0635-8903717
邮箱:lcsspjzrzyk@163.com
聊城市行政审批服务局
2023年12月25日
总平面图



