扫描到手机
扫描到手机 新闻随时看
扫一扫,用手机看文本
更加方便分享给朋友

聊城县豫剧团练功房
历史文化建筑
古建筑是历史文化的载体
是一座城市的记忆,是城市历史的见证者,它承载着这座城市的文化积淀。
建筑概况
建筑名称:聊城县豫剧团练功房
建筑地址:山东省聊城市东昌府区米市街128号
建造年代:建国后(1949-1978年)
建筑类别:公共建筑
现状功能:闲置空置
结构类型:砖混结构
建筑面积:102㎡
所在城市类型:国家级历史文化名城
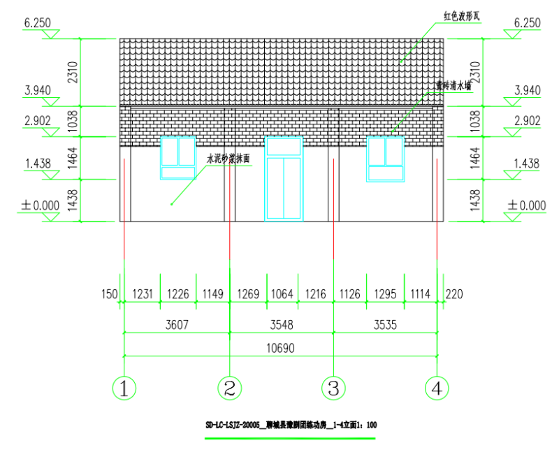
建筑特色描述:组建于1948年,初名为寿张县豫剧团,1964年归专区领导,1970年下放到聊城县,名为“聊城县豫剧团”,曾到东北三省,河南,河北各大城市及农村厂矿巡回演出,多次参加省,专区举办的戏剧汇演,调研并获奖,先后出现了张桂花、章兰等著名豫剧表演艺术家,现章兰任团长,张玉臣任书记,经常外出演出,为聊城文化事业做出积极贡献。此练功房为豫剧团的主要练功房。3间练功房青砖建造,起脊瓦房。

彩色模型:顶视图

彩色模型:右后视图

彩色模型:右视图

彩色模型:左前视图

彩色模型:左视图

总平面图

平面图

立面图



剖面图

影像档案

主要立面

主要立面

次要立面

次要立面

价值要素部位

价值要素部位

价值要素部位