扫描到手机
扫描到手机 新闻随时看
扫一扫,用手机看文本
更加方便分享给朋友
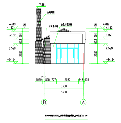
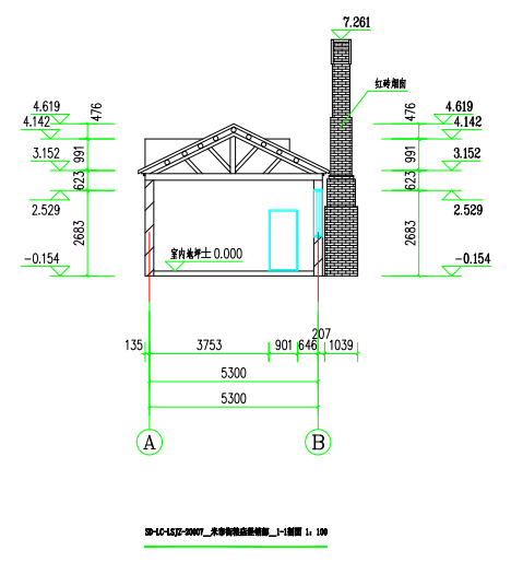
米市街粮店经销部 历史文化建筑 古建筑是历史文化的载体 是一座城市的记忆,是城市历史的见证者,它承载着这座城市的文化积淀。 建筑名称:米市街粮店经销部 建筑地址:山东省聊城市东昌府区米市街142号 建造年代:建国后(1949-1978年) 建筑类别:公共建筑 现状功能:工业仓储 结构类型:砖木结构 建筑面积:146.31㎡ 所在城市类型:国家级历史文化名城 建筑特色描述:建国后,顺应时代需要在米市街建立的粮店,供给附近居民粮、油用品,反映了当时供给经济的特征,此粮店为国营企业,当时有工人20人左右,粮店二楼及家属院,厂房改为职工个人所有,一楼是原粮店仓库,归东昌府区粮油供应公司所有。
彩色模型:顶视图 彩色模型:前视图 彩色模型:左前视图 彩色模型:后视图



彩色模型:右后视图








主要立面 主要立面 次要立面 次要立面 价值要素部位 价值要素部位




