扫描到手机
扫描到手机 新闻随时看
扫一扫,用手机看文本
更加方便分享给朋友
中国城市居民居住满意度调查显示,在当代中国家庭的生活居住观下,户型是最被关注的要素之一。
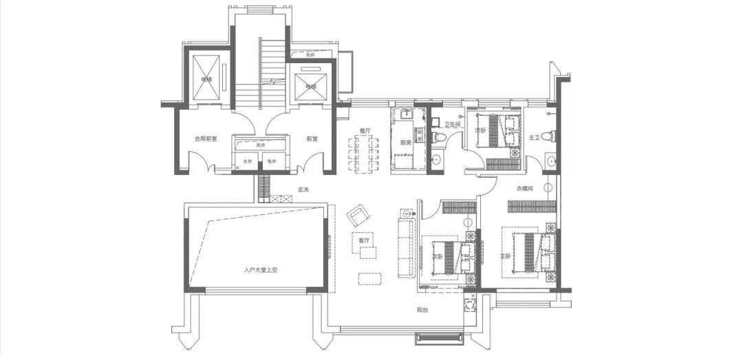
什么样的户型才能得到大家的青睐,把房子真正变成家?无论时代如何变迁,核芯地段的优质改善户型依旧是购房热点,和鸣大观建面约141㎡全能奢阔三室仅余两席!11XXX元/㎡起,抢抓购房机遇,置业就现在!
01高性价比奢适空间 唯此全能三室
和鸣大观建面约141㎡全能三室户型采用了“餐客一体+主卧套房+电梯入户“设计,让空间动线更加便利、互动交流更加紧密,满足二人世界、三口之家、三代同堂等居住需求,为家庭由衷地营造出丰盈于心的舒适居感。
02宽境尺度 共鸣菁英品味
和鸣大观全能三室餐客双厅一体化设计,极简动线一轴串联,不仅让空间更加开阔延伸,更使得家庭成员的互动频率得以提高。南向客厅连接厅卧双联阳台,举目可望园林四季交错,举手可拥鲜氧清风入怀。周末时光,在阔绰客厅,与家人好友推杯换盏,于阳台休闲躺椅读书,微风徐徐,一切都是岁月静好的模样。
03星级套房 私享静谧时光
如果说餐客厅是家庭的社交共享空间,那主卧就是主人的私属生活场域。
和鸣大观星级主卧套房设计,配置衣帽间,完美解决衣物储藏空间局促等问题;独立卫浴设计,避免清晨洗手间拥挤的同时,更营造出私密又温馨的二人世界;南向观景飘窗,引风光入室,为生活注入了一丝细腻与温情……居于此,臻享私密、从容、优雅、尊崇的高品质生活格调。
04电梯入户 至高归家礼遇
电梯独立入户,意味着一种空间的私属。和鸣大观全能三室私享入户电梯厅,有效便捷家人出行。考虑到居者对家庭收纳空间的需求,和鸣大观在入户玄关处设置收纳柜,方便放置居家衣物,也可将居家杂物一齐收纳,生活从此井然有序。
和鸣大观建面约141㎡全能三室户型,以居住空间为载体,演绎恰如其分的美好生活!11XXX元/㎡起,抓住机遇!低门槛入住高性价比好房!
户型赏析
